tel:
+420 545 211 401   
email
en
cz

Pronájem bytu Úvoz 21 (č.002), Ostrava

Parametry

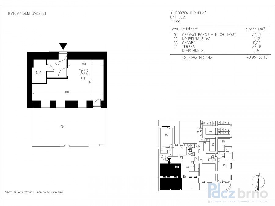
Dispozice 1+kk
Plocha 39,6 m2
Umístění 1.PP
Cena služeb 1 700 Kč
Služby poznámka za druhou ubytovanou osobu plus 700 Kč, v ceně služeb není zahrnuta spotřeba elektřiny, eventuelně připojení k internetu
Vratná kauce 46 500 Kč
Terasa 38,0 m2
Bezbariérový přístup ne
Možnost internetu poskytovatelem je Vodafone
Parkování oblast rezidentních zón
Topení centrální plynová kotelna v domě
Energetický štítek D: Méně úsporná

Váš makléř

Miluše Vokálová DiS.
+420 736 533 007

Vaše kontaktní údaje:
Jméno a příjmení:
Telefon:
e-mail:

Kontaktujte mě

Popis nemovitosti

Pronájem bytu v centru Brna

Nabízíme k pronájmu byt 1+kk v centru Brna, ulice Úvoz 21. Byt má plochu 39,61 m2 a náleží k němu předzahrádka o ploše 37,61 m2; nachází se v 1. podzemním podlaží domu. Historický dům, ve kterém se byt nachází, prošel kompletní rekonstrukcí na přelomu let 2015/2016.

V bytě jsou plovoucí laminátové podlahy, dřevěná okna a kuchyňská linka vybavená standardními spotřebiči - mini lednicí, dvouplotýnkovou elektrickou varnou deskou, digestoří a myčkou nádobí. Koupelna je osazena sprchovým koutem a umývadlem a je dohromady s toaletou, disponuje připojením na pračku s horním plněním.

Vytápění a ohřev TUV jsou zajištěny z centrální plynové kotelny, spotřeba v bytě měřena kalorimetrem. Smlouva na odběr elektrické energie se převádí na nájemce. Preferujeme nájemce bez domácích mazlíčků. K bytu je možné pronajmout sklepní kóji od 250 Kč měsíčně.

Poloha domu nabízí výbornou dostupnost centra města a parku pod hradem Špilberk.

 


 

Umístění nemovitosti